Mapa   |     Ficha
CHALET PAREADO DE 246 m2 CON AMPLIA PARCELA EN GONDOMAR
Gondomar (Centro) - REF. 3936
246 m2 30 m2 4 4 1
venta: 400.000 €
Descripción

Oportunidad en Gondomar
Vendemos chalet pareado situado en la Urbanización Miñor, a escasos metros del centro de Gondomar, y en un entorno de carácter residencial y muy tranquilo. 

Magníficamente  comunicado y muy accesible: a sólo 20 minutos de Vigo y a 5 de Nigrán. 

La vivienda cuenta con un semisótano destinado a bodega, la planta baja y 2 alturas más, todo sobre una cómoda parcela rectangular de 302 m2, tamaño suficiente para disfrutarla sin necesidad de un gran mantenimiento. 

Cuenta con la siguiente distribución:

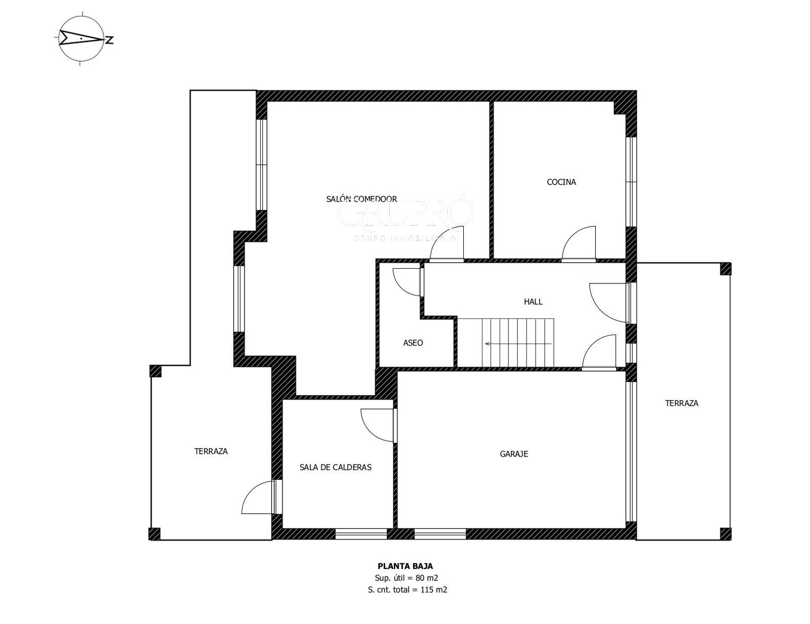
PLANTA BAJA:
-Cocina independiente, equipada y amueblada (10 m2);
-Salón-comedor en dos ambientes, con salida al jardín (25 m2);
-1 baño de servicio;
-Amplio garaje cerrado, comunicado interiormente con el hall (18 m2);
-Cuarto de calderas;
-Pasillo y vestíbulo;
-2 amplias terrazas, situadas en ambas fachadas principales.

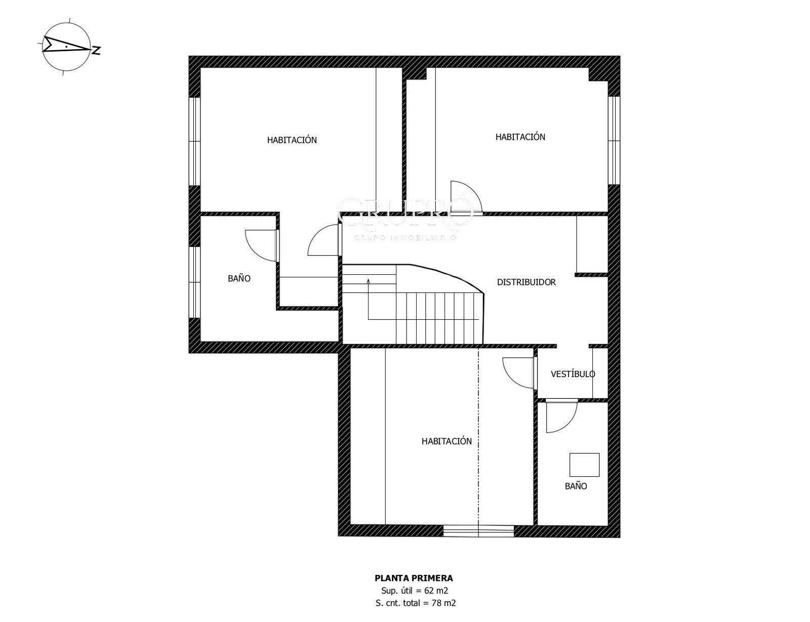
PLANTA PRIMERA:
-3 habitaciones dobles, todas con armarios empotrados;
-2 baños completos (uno de ellos en suitte);
-Distribuidor.

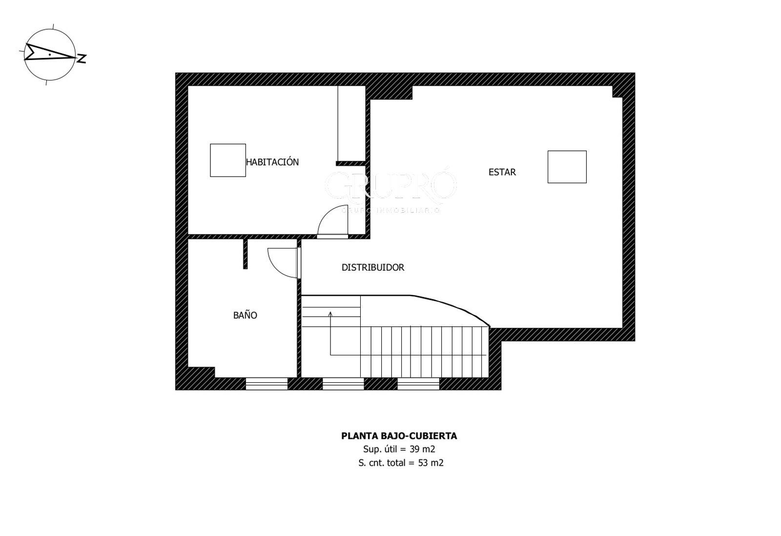
PLANTA BAJO-CUBIERTA:
-1 habitación doble, con armarios empotrados;
-1 baño completo;
-Distribuidor y zona de estar (24 m2).

En el sótano dispone de una bodega de unos 30 m2. 

Dispone de doble ventanal de aluminio en toda la casa, carpintería de buena calidad, calefacción y agua caliente centrales, y un total de 7 armarios empotrados.

Se puede entrar a vivir con un mínimo de actualización.

Contacte con nosotros para más información o visita.
Consulte también nuestra página web.

Características
Precio Venta 400.000 €
Año de construcción 1994
Construidos 246 m2
Útiles 181 m2
Parcela 302 m2
Jardín 185 m2
Dormitorios 4
Baños 4
Cocina Amueblada
Calefacción Central de Gasoil
Trastero
Terraza
Estado Conservada- Necesita actualización
Tipo de suelo Parquet
Garaje
Calificación Energética En trámite
Luz
Agua
Ubicación
La dirección del inmueble es aproximada.
Escalas de eficiencia



Contacta con tu asesor
Fabián Fernández (Venta)
Contáctanos

Si deseas más información sobre esta propiedad, por favor, rellena el formulario.

 Sí, he leído y/o acepto las Condiciones de uso y la Política de privacidad
Inmuebles similares:
 
375.000 €
Ref. 1991  255 m2  4  4
COMENZAMOS LA COMERCIALIZACIÓN DE LA SEGUNDA FASE DE LA URBANIZACIÓN ALTOS DE MONDARIZ.
No dude en llamarnos y preguntarnos, sólo quedan 3 pareados. Exclusividad y calidad a buen precio.
 
365.000 €
Ref. 2371  255 m2  4  4
COMENZAMOS LA COMERCIALIZACIÓN DE LA SEGUNDA FASE DE LA URBANIZACIÓN ALTOS DE MONDARIZ.
No dudes en llamarnos y preguntarnos, sólo quedan 3 pareados. Exclusividad y calidad a buen precio.