Ficha
ZONA DE PLAYAS !!
PISO DE 2 DORMITORIOS CON GARAJE EN CANIDO
Vigo (Canido) - REF. 4083
65 m2 3 m2 2 1 1 2
venta: 375.000 €
antes: 415.000 €
Descripción
Oportunidad para vivir en un entorno exclusivo y privilegiado, y a solo 200 metros del mar.

Vendemos piso de 65 m2 en Canido, en la calle Olimpia Valencia. Se trata de un entorno residencial tranquilo y bien comunicado, en un exclusivo vecindario, rodeado de zonas verdes, y con una playa a menos de 2 minutos andando.
  
La vivienda se sitúa en 2ª planta y es casi toda exterior.
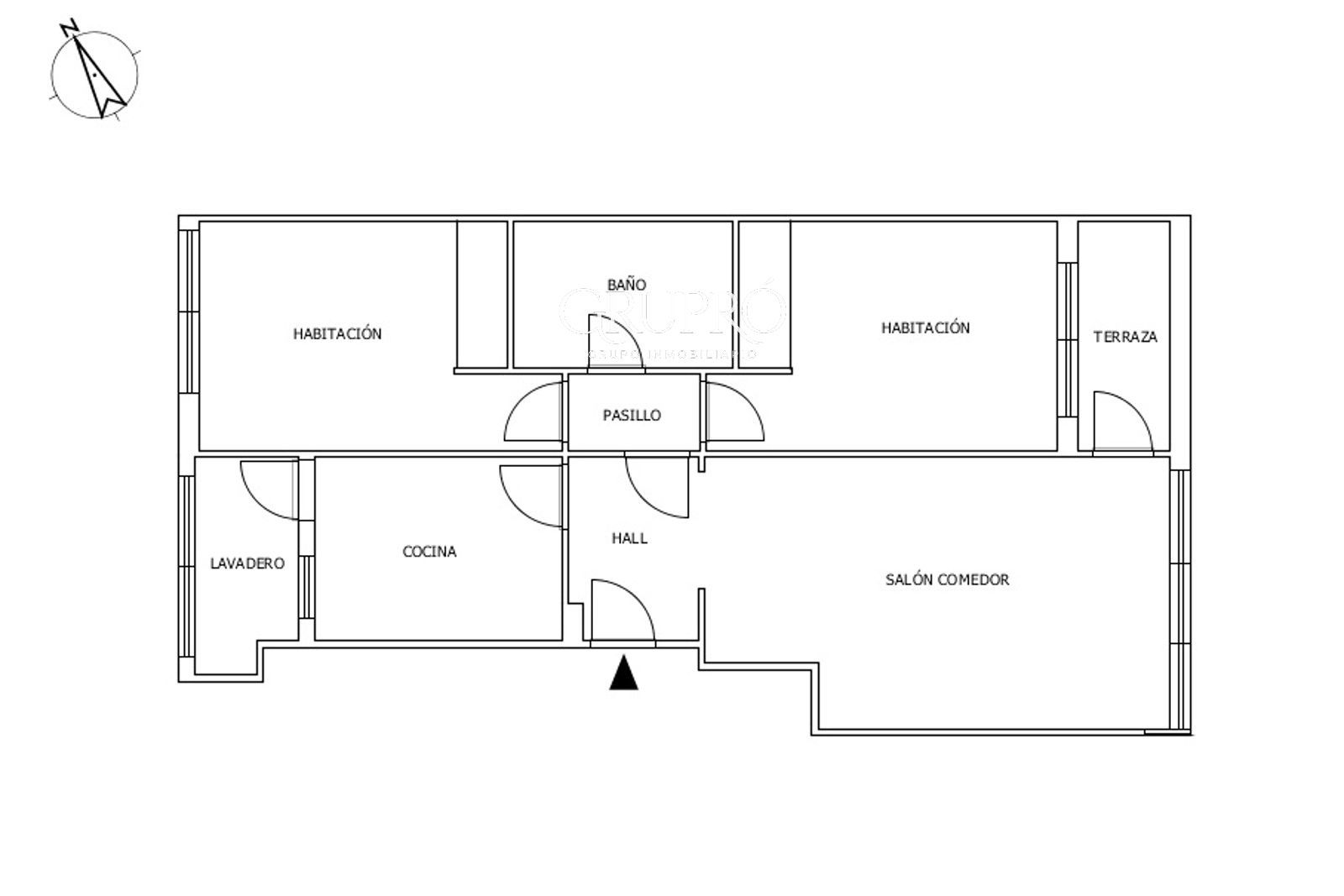
Cuenta con la siguiente distribución:

-2 dormitorios dobles (ambos con armarios empotrados);
-1 baño completo, con bañera;
-Salón comedor de 19 m2, con salida a terraza exterior;
-Cocina independiente, equipada y amueblada;
-Cuarto lavadero separado; 
-Pasillo y vestíbulo de entrada.

Dispone además de suelos de parquet, calefacción y agua caliente por gas natural (con contadores individuales. Buen estado para entrar a vivir. Cuenta además con una plaza de garaje de acceso directo y una bodega.

Construcción de 1999.
Comunidad de 81 euros mensuales

Contacta con nosotros para más información o visita.
Visita también nuestra página web.

Información al consumidor: (1) El precio indicado corresponde exclusivamente al inmueble y no incluye impuestos ni gastos derivados de la compraventa (ITP, notaría, registro u otros que pudieran corresponder conforme a la normativa vigente).
(2) El tipo aplicable del Impuesto sobre Transmisiones Patrimoniales en Galicia puede variar en función de las circunstancias personales y fiscales del comprador.
(3) Las superficies y características del inmueble se corresponden con la información facilitada por la propiedad, con la documentación disponible y/o, en su caso, con mediciones o planos de carácter orientativo, pudiendo ser objeto de comprobación documental.

Características
Precio Venta 375.000 €
Precio/m² 5.769
Gastos de comunidad 81 €
Año de construcción 1999
Construidos 65 m2
Útiles 57 m2
Dormitorios 2
Baños 1
Cocina Amueblada
Calefacción Central de Gas
Trastero
Terraza
Altura/Planta 2
Estado Bueno
Tipo de suelo Parquet
Ascensor
Garaje
Calificación Energética En trámite
Luz
Gas
Agua
Escalas de eficiencia



Contacta con tu asesor
Chelo Balboa
Contáctanos

Si deseas más información sobre esta propiedad, por favor, rellena el formulario.

 Sí, he leído y/o acepto las Condiciones de uso y la Política de privacidad
Inmuebles similares:
 
390.000 €
Ref. 4068  104 m2  4  2
Bouzas. Calle Marín. Piso exterior y completamente reformado de 104 m2. 7ª planta. 4 dormitorios amplios. 2 baños completos. Cocina independiente y equipada. Amplio salón comedor con terraza exterior. Plaza de garaje de acceso directo y 2 trasteros. Perfecto para entrar a vivir.
 
325.000 €
Ref. 3408  61 m2  2  1

Piso de 61 m2 en Rúa Areal (frente a la Alameda). 2 habitaciones. 1 baño completo. Salón comedor cocina de 21 m2. Calefacción individual. Plaza de garaje y trastero.