Mapa   |     Ficha
OPORTUNIDAD
LOCAL DE 120 m2 EN 2 PLANTAS EN ZONA PERITOS
Vigo (Peritos) - REF. 3745
121 m2 1
venta: 43.000 €
Descripción

Oportunidad en venta.

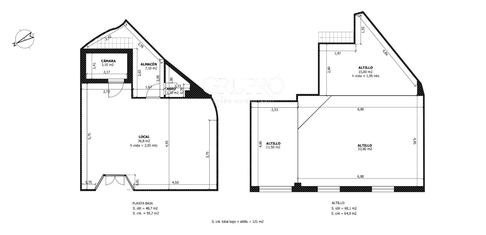
Vendemos local en planta baja de 120 m2 totales, en la calle Tomás Alonso, a escasos metros de la facultad de Peritos y de la Plaza de Eugenio Fadrique. 

Cuenta con unos 7 mts de fachada, y está distribuido en 2 plantas:

-Planta baja (55 m2 construidos), con una altura interior de 2,93 mts; 
-Planta en altillo (65 m2 construidos), con altura interior de 1,95 mts.  

Es ideal para cualquier pequeño negocio o emprendimiento, por su precio y características, y con un mínimo de acondicionamiento.

El uso anterior fue de carnicería. Posibilidad de reacondicionar la cámara de frío.
Dispone de un aseo. 

Más información y visita sin compromiso. 
Consulte nuestra página web.

Características
Precio Venta 43.000 €
Precio/m² 355 €/m²
Año de construcción 1976
Construidos 121 m2
Útiles 108 m2
Baños 1
Estado A restaurar
Calificación Energética (G) VER
Ubicación
La dirección del inmueble es aproximada.
Escalas de eficiencia


Eficiencia Emisiones: 53,60
Eficiencia Consumo: 278,80
278,8
53,6

Contacta con tu asesor
Fabián Fernández
Contáctanos

Si deseas más información sobre esta propiedad, por favor, rellena el formulario.

 Sí, he leído y/o acepto las Condiciones de uso y la Política de privacidad