Mapa   |     Ficha
OPORTUNIDAD
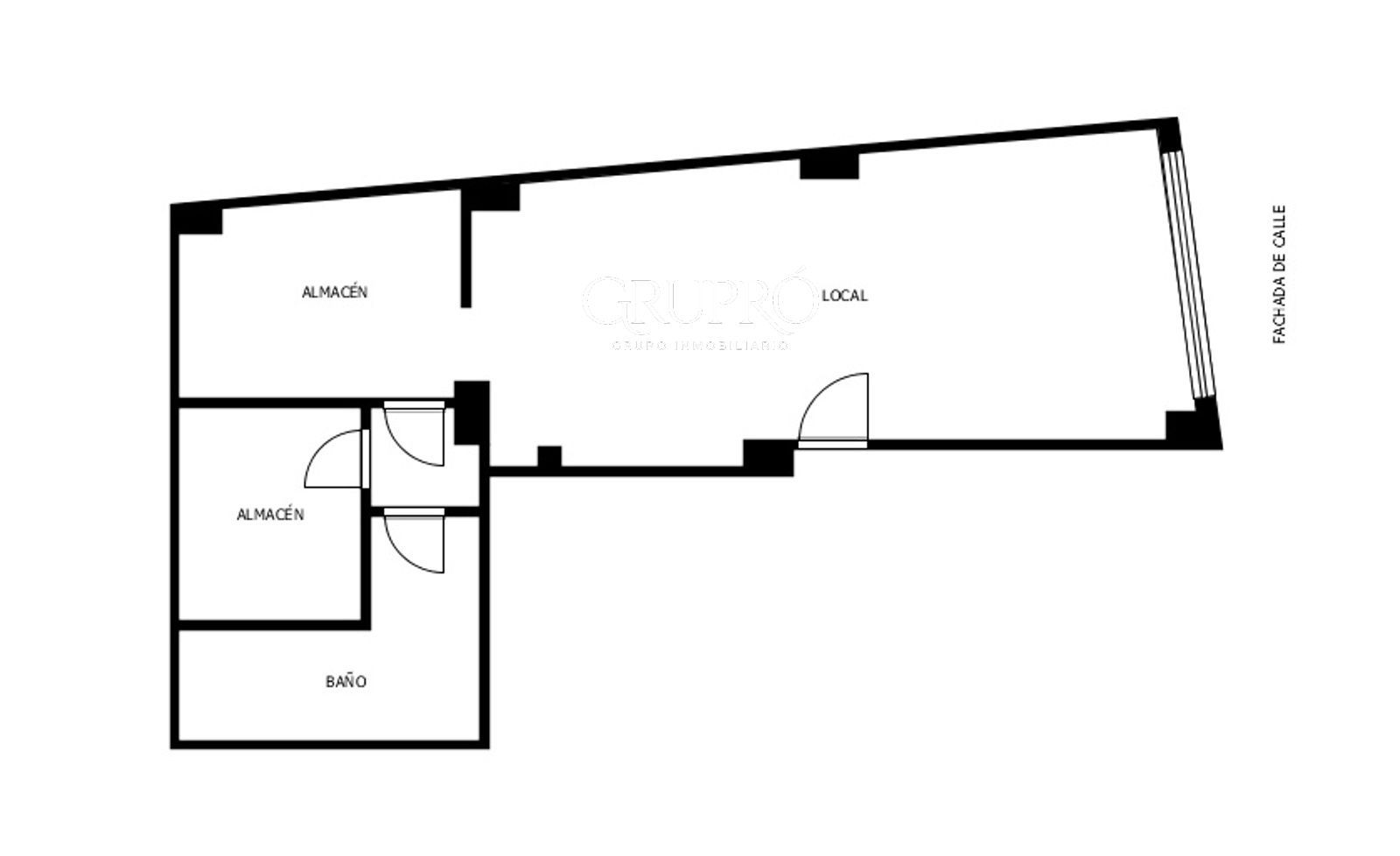
OFICINA DE 53 m2 EN PLENA AVENIDA ATLÁNTIDA
Vigo (Alcabre) - REF. 2674
53 m2 1 1
venta: 70.000 €
Descripción

Oportunidad para inversores en Avenida Atlántida.

Vendemos OFICINA de 53 m2 para en Avenida Atlántida.
Es una ENTREPLANTA sin ascensor.

Cuenta con un gran ventanal exterior a la calle, en un amplio espacio de más de 30 m2, con zona de almacenamiento, una pequeña habitación y un baño completo.

La última actividad fue de peluquería y estética, y dispone de licencia.

Observaciones: - por su distribución, se puede acondicionar como apartamento de un dormitorio, realizando una reforma mínima. No obstante, no se puede asegurar en ningún caso la posibilidad de hacer un cambio de uso, ya que no dispone de ascensor.

La zona cuenta con todos los servicios básicos necesarios, y con el encanto y el indudable atractivo de estar al lado de las playas, lo que hace que la rentabilidad de su inversión esté prácticamente garantizada.

Contacte con nosotros para más información o visita.
Consulte también nuestra página web.

Características
Precio Venta 70.000 €
Año de construcción 1960
Construidos 53 m2
Útiles 48 m2
Despachos 1
Baños 1
Estado Bueno
Calificación Energética En trámite
Luz
Agua
Ubicación
Escalas de eficiencia



Contacta con tu asesor
Fabián Fernández (Venta)
Contáctanos

Si deseas más información sobre esta propiedad, por favor, rellena el formulario.

 Sí, he leído y/o acepto las Condiciones de uso y la Política de privacidad