Mapa   |     Ficha
BUENA INVERSIÓN !!
APARTAMENTO DE 2 DORMITORIOS AL LADO DE PLAZA AMÉRICA
Vigo (Plaza de América) - REF. 4210
46 m2 1,80 m2 2 1 3
venta: 169.000 €
antes: 178.000 €
Descripción
Apartamento de 2 dormitorios disponible en pleno corazón de as Travesas.

Vendemos piso de 46 m2 en la Avenida de la Florida, a escasos metros de Plaza de América. La zona cuenta con los servicios y comodidades que necesitas a mano. 

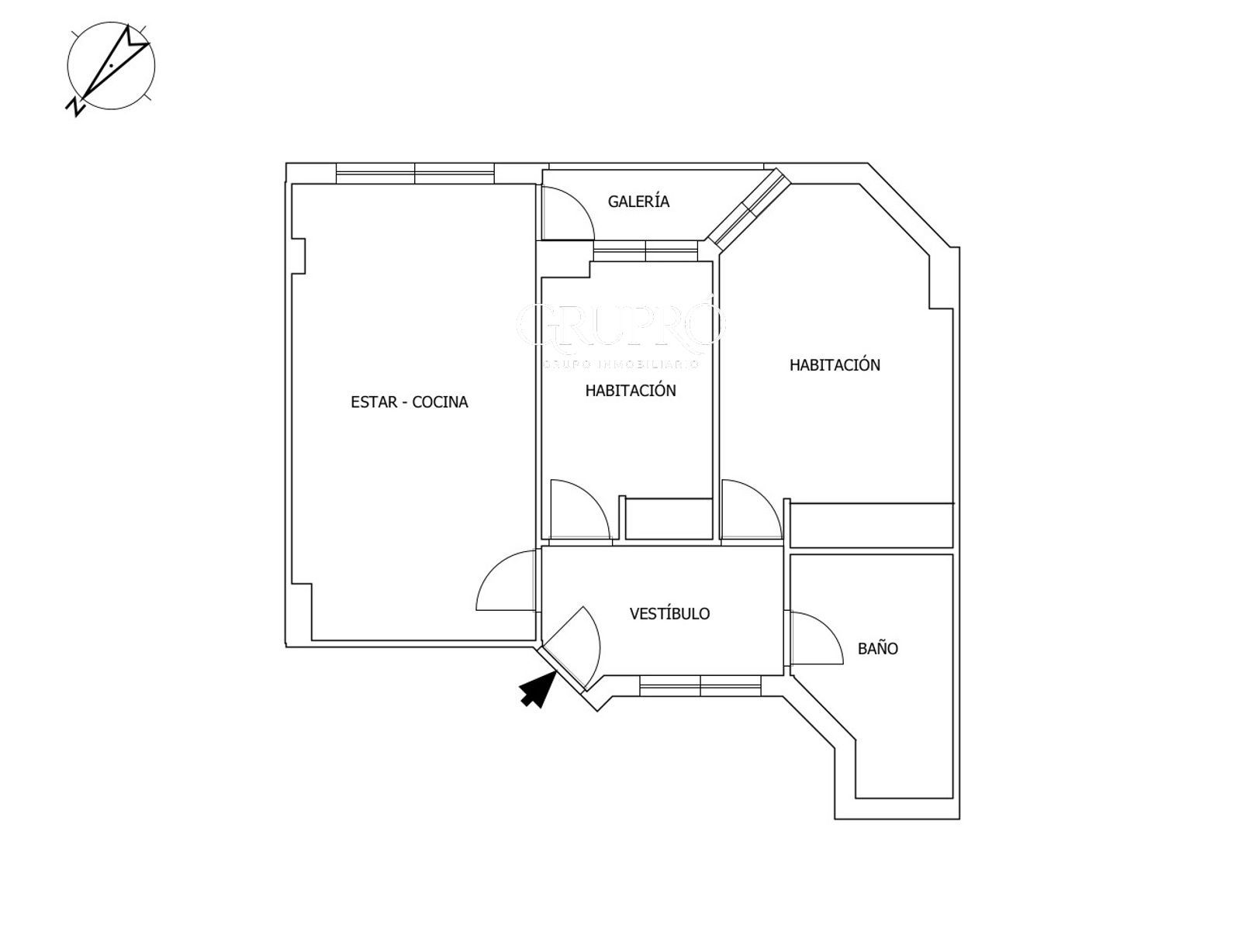
La vivienda está ubicada en 3ª planta y cuenta con la siguiente distribución:

-Un amplio salón-comedor-cocina, con galería exterior a su fachada trasera;
-2 habitaciones, ambas con armarios empotrados;
-1 cuarto de baño, completo y con bañera;
-Vestíbulo de entrada y pasillo.

Dispone además de suelos de tarima flotante, ventanas de aluminio, y un trastero en el mismo edificio. 

Construcción del año 1983.
Comunidad de unos 50 eu/mes.

Contacte con nosotros para más información o visita. 
Visite también nuestra página web.

Información al consumidor: (1) El precio indicado corresponde exclusivamente al inmueble y no incluye impuestos ni gastos derivados de la compraventa (ITP, notaría, registro u otros que pudieran corresponder conforme a la normativa vigente).
(2) El tipo aplicable del Impuesto sobre Transmisiones Patrimoniales en Galicia puede variar en función de las circunstancias personales y fiscales del comprador.
(3) Las superficies y características del inmueble se corresponden con la información facilitada por la propiedad, con la documentación disponible y/o, en su caso, con mediciones o 
Características
Precio Venta 169.000 €
Precio/m² 3.674
Gastos de comunidad 50 €
Año de construcción 1983
Construidos 46 m2
Útiles 41 m2
Dormitorios 2
Baños 1
Cocina Amueblada
Trastero
Terraza
Altura/Planta 3
Estado Conservada- Necesita actualización
Tipo de suelo Tarima flotante
Ascensor
Calificación Energética En trámite
Luz
Agua
Ubicación
La dirección del inmueble es aproximada.
Escalas de eficiencia



Contacta con tu asesor
Chelo Balboa (Venta)
Contáctanos

Si deseas más información sobre esta propiedad, por favor, rellena el formulario.

 Sí, he leído y/o acepto las Condiciones de uso y la Política de privacidad
Inmuebles similares:
 
139.000 €
Ref. 4511  76 m2  2  1

Redondela Centro. 76 m2 construidos. 3ª planta. 2 habitaciones. 1 baño completo. Cocina independiente. Amplio salón comedor. 2 terrazas. Edificio sin ascensor. Oportunidad por zona y precio.

 
139.000 €
Ref. 4400  76 m2  2  1

Redondela Centro. 76 m2 construidos. 2ª planta. 2 habitaciones. 1 baño completo. Cocina independiente. Amplio salón comedor. 2 terrazas. Edificio sin ascensor. Oportunidad por zona y precio.